eNTRO D5000 Hydraulic Pivot Closer Instruction Manual

CONTENTS

ADJUSTMENT

ADJUSTMENT OF CLOSING SPEED:
Two regulating valves (I) and (II) .
decrease speed.
increase speed.- Valve (I): control closing range 150°-15°
- Valve (II): control latching range 15°-0°
ADJUSTMENT

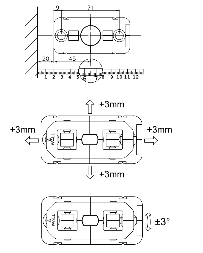
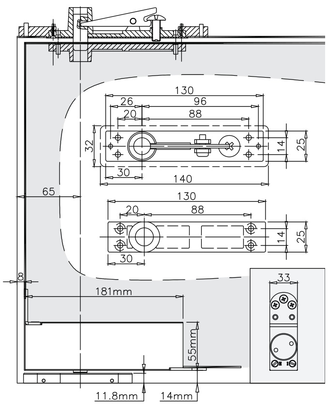
DIMENSION





IMPORTANT INSTALLATION NOTES
After installation, please check and test

- Open the door leaf to its maximum opening angle and release The door leaf should close fully into the door frame and overcome the latch.
- Open the door leaf and rest the latch bolt on the striker plate. Release the door leaf. The door closer should have sufficient power to latch the door leaf closed.
Maintenance

- Check the door closer every three months to ensure all fixings are secure and adjust, if necessary, adjust the closing and latching speed and mark the door operating both functionally and smoothly, in accordance with the expectations of BS EN 1154:1997.
- Apply light oil to arm knuckle joint and door hinges.
D5000 Installation Instructions
www.entro.com.au